Přeskočit na obsah
Kontaktujte nás
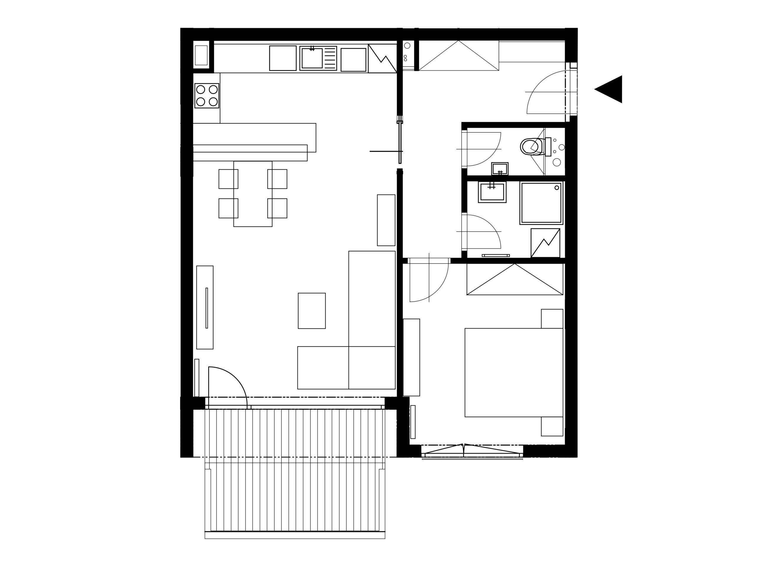
  • Dispozice 2+kk
  • Podlahová plocha 57,68 m2
  • Podlaží 7. podlaží
  • Budova D
Vstupní chodba 9,15 m2
Koupelna 3,15 m2
WC 1,59 m2
Obývací pokoj + Kuchyně 31,32 m2
Ložnice 12,47 m2
Balkon 9,56 m2
Celková plocha 67,24 m2

Dokumenty ke stažení

Karta bytu
Standardy bytů
Vybavení bytu zobrazené v tomto schématu (s výjimkou koupelen a WC) je pouze ilustrativní a není součástí prodeje. Pro více informací či rezervaci se neváhejte obrátit na našeho prodejce, který je Vám plně k dispozici. Výstavba projektu bude dokončena v roce 2028.
D.7.701
Ulice Polská
Směr Kaufland

Celková situace

A B C D

Podlaží bytu

8. NP
7. NP
6. NP
5. NP
4. NP
3. NP
2. NP

Poloha bytu

D.7.701

Váš vysněný byt

Máte zájem o moderní byt s prvotřídním provedením? Neváhejte a vyplňte náš formulář pro nezávaznou poptávku. Rádi vám poskytneme více informací a odpovíme na vaše dotazy!

Mgr. Dominika Samiecová, MRE

Mgr. Dominika Samiecová, MRE

Výhradní prodejce projektu

Pole označená * jsou povinná.
Odesláním formuláře souhlasíte se zpracováním osobních údajů.